Lebendige Ortsmitte Friedrichsfeld

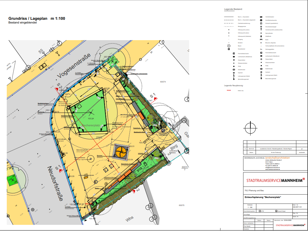
Die städtebauliche Erneuerungsmaßnahme „Friedrichsfeld Zentrum“ wurde mit der Beschlussvorlage V380/2016 vom Gemeinderat in der öffentlichen Sitzung am 20.12.2016 beschlossen und somit als förmliches Sanierungsgebiet festgelegt. Die Durchführung der Maßnahmen wurde eine Frist bis 31.12.2030 festgelegt. Ziel des Sanierungsgebietes ist die Aufwertung des Ortskerns von Friedrichsfeld sowie die Zentrumsqualität des Stadtteils als Wohn- und Gewerbestandort gestärkt werden. Hierzu sollen vor allem Maßnahmen im öffentlichen Raum beitragen. Vorgesehen ist die Neugestaltung von vier Stadtteilplätzen, die mit einem Bürgerbeteiligungsprozess umgesetzt werden sollten. Im Jahr 2015 die Herstellung des Hugenottenplatzes (Goetheplatz) in der öffentlichen Sitzung des Ausschuss für Umwelt und Technik (AUT) vom 29.10.2015 beschlossen und im Dezember 2017 fertiggestellt. Mit dem neuen Bechererplatz soll ein neuer Freiraum kreiert werden, der, statt der vorhandenen, eher introvertierten Anlage, den Besucher und Passanten mit einer offenen, aufgeräumten und einladenden Geste empfängt. Die Platzfläche erhält einen Belag aus Betonpflaster in der Optik eines muschelkalkfarbenen Pflasters und bietet vielfältige Möglichkeiten der Nutzung.


Die vorhandene Brunnenanlage wurde in den letzten Jahren saniert und wird in die Platzgestaltung einbezogen. Das vorhandene Denkmal soll an seiner jetzigen Stelle verbleiben. Der Platz wird mit drei neuen Mastleuchten mit einer Lichtpunkthöhe von ca. 5 Metern ausgestattet und die vorhandene hohe Mastleuchte (10 Meter) wird durch eine neue große Mastleuchte ersetzt. Von der Vogesenstraße aus wird der Platz mit herausnehmbaren Pollern ausgestattet, so dass hier eine Befahrung möglich wird. Insgesamt werden entlang des Kreuzungsbereichs Vogesenstraße und Neudorfstraße Poller eingebaut, um eine weitergehende Platzbefahrung auszuschließen.

Darüber hinaus werden die Zugänge zur Platzfläche zur Kenntlichmachung mit taktilen Leitelementen ausgestattet, umso mehr Barrierefreiheit zu gewährleisten.


Die Platzfläche wird überwiegend bestimmt von der Auswirkung der vorhandenen Wegebeziehung, die sich diagonal in der Achse zur benachbarten Kirche über den Platz erstreckt.


Die locker über den Platz gestellten Platanen sind eine weiteres prägendes Element für diesen Ort und schränken aufgrund ihres Wurzelraums und des für die Art bekannten ganzjährigen Abwurfs von Blättern, Rinde und „Früchten“ den Gestaltungsspielraum drastisch ein. Die weitgehend axiale Wegeführung mit Blickbeziehung zur Kirche aufnehmend, werden alle neuen Gestaltungselemente entlang dieser neuen Wegeachse ausgerichtet und die Wegeverbindung tangierend angeordnet. Die Hauptwegerichtung begleitend, sind auch die Bankelemente angeordnet. Die Platzfläche ist auf ihrer Schmalseite zu den benachbarten Privatgärten durch Stelen abgegrenzt und die dadurch verbleibende, dahinter liegende, ursprünglich öffentliche Fläche, den Privatgärten zur Betreuung und Pflege überlassen. Aufgrund der nahezu die ganze Platzfläche durchziehenden Wurzeln der Platanen wird vorgeschlagen, die Wegeflächen mit einer wassergebundenen Decke zu befestigen und nur die Fußbereiche vor den Sitzgruppen mit Pflaster zu befestigen.

 

 

Wichtige Downloads