Außenbestuhlung und Sondernutzungen im öffentlichen Raum

Außenbestuhlung und Sondernutzungen im öffentlichen Raum

Der öffentliche Raum gehört allen Menschen in Mannheim. 

Damit Straßen und Plätze gut nutzbar bleiben, benötigen einige Nutzungen eine Genehmigung. Dazu gehören zum Beispiel Außenbestuhlung von Restaurants, Werbeständer für Handel oder Veranstaltungen.
 

Auf dieser Seite finden Sie alle wichtigen Informationen und Gestatungsvorgaben zu den verschiedenen Sondernutzungen und wie Sie eine Erlaubnis beantragen können.

Was ist eine Sondernutzung?

Sondernutzung bedeutet: Der öffentliche Raum wird anders genutzt als normalerweise vorgesehen.
Dazu zählen zum Beispiel das Aufstellen von Tischen, Bäünken und Stühlen, Warenauslagen, Werbetafeln, Baustelleneinrichtungen oder technische Anlagen.

Für diese Nutzungen ist eine Genehmigung der Stadt erforderlich.

Welche Arten von Sondernutzung gibt es?

Mobile Sondernutzung - können leicht aufgebaut oder wieder entfernt werden. 

Dazu gehören:

  • Außenbestuhlung auf dem Geheweg (Tische, Stühle, Sonnenschirme)
  • Außenbestuhlung als Parklet
  • Warenständern und mobilen Werbetafeln
  • Veranstaltungen im öffentlichen Raum
  • Straßenfesten, Werbeveranstaltungen vor dem Ort der eigenen Niederlassung
  • Umzügen (z.B. Fastnachtsumzüge, Martinsumzüge und Prozessionen) und ähnlichen Veranstaltungen (bis 250 Teilnehmende)
  • Platzkonzerte und Straßenmusik
  • Drehgenehmigungen
  • Aufstellen von mobilen Containern bei Umbau bei Veranstaltungen für einen kurzen Zeitraum
  • Baustelleneinrichtung
  • Informationsveranstaltungen
Immobile Sondernutzungen - sind fest mit dem Boden oder einer Fassade verbunden.

Dazu gehören:

 

 

Wie beantrage ich eine Sondernutzungserlaubnis?

Je nachdem, wofür Sie den öffentlichen Raum nutzen möchten, brauchen wir unterschiedliche Angaben.
Hier finden Sie die wichtigsten Anträge auf einen Blick:

Sicherheits- und Gestaltungsvorgaben

Sondernutzungssatzung der Stadt Mannheim - inklusive Gebührenverzeichnis

Die Satzung betrifft Sondernutzungen an allen öffentlichen Straßen, Wegen und Plätzen der Stadt Mannheim sowie an den Ortsdurchfahrten der Bundesfernstraßen.

Gestaltrichtlinie - Zentraler Innenstadtbereich

Für Gastronomieflächen in der Innenstadt gilt die Gestaltrichtlinie. Sie legt den verbindlichen Rahmen fest, nach dem Sondernutzungsanträge geprüft werden. Ziel ist es, die Qualität der Fußgängerzone und des gesamten Geltungsbereichs zu sichern und zu verbessern. Beschluss: Gemeinderat, Dezember 2017.

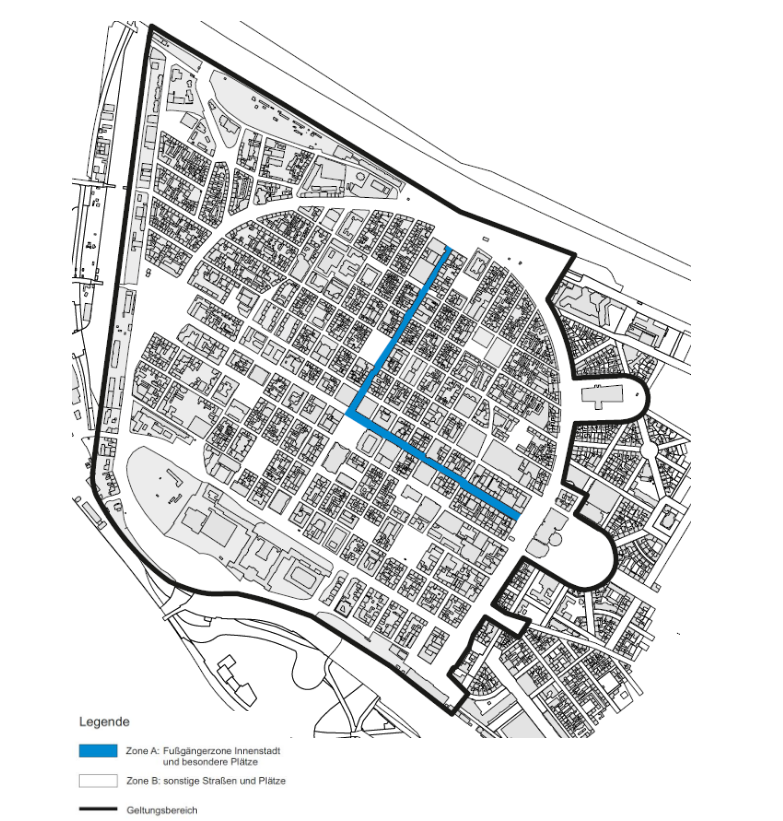
Geltungsbereich

Parkletleitfaden - Umnutzung von Parkständen in Gastronomieflächen

Der „Leitfaden Parklets in Mannheim“ macht das Verfahren transparent und bündelt alle wichtigen Sicherheits-, Gestaltungs- und Genehmigungskriterien. Der Leitfaden ist für das gesamte Stadtgebiet gültig.

 

Gastronomie - Antrag auf Außenbestuhlung

Wie viel Platz braucht mein Kunde / Kundin?
Wie viel Platz braucht der Fußverkehr?
Wie viel Abstand muss zum Blindenleitstreifen eingehalten werden? 60cm!

 

Aufteilung des Straßenraums
Gehwegbestuhlung - Tische, Stühle, Bänke etc. auf dem Gehweg oder in der Fußgängerzone

Erforderliche Unterlagen:

  • Gewerbeanmeldung
  • Zustimmung vom Eigentümer
  • Foto von der Örtlichkeit / Gewünschter Bestuhlungsbereich
  • Lageplan mit Maßen
  • Informationen zum Mobiliar wie Tische, Stühle, Pflanzkübel, Sonnenschirme, Heizpilze etc. (Fotos und Maße oder Datenblätter)
  • Bestuhlungszeitraum

Viele Gastronomiebetriebe bestuhlen aus Kostengründen lediglich die warmen Monate – bspw. 1.3. bis 31.10. oder 15.3 bis 15.10. (nur ganze Monate). 
Alternativ kann ein Sommerplan eingereicht werden sowie ein Winterplan mit reduzierter Bestuhlungsfläche.

Antragsformular Gehwegbestuhlung (beschreibbar)
Muster-Lageplan Gehweg
Muster-Antrag komplett

Sonnenschirme mit Bodenhülsen

Für eine sichere und platzsparende Aufstellung von Sonnenschirmen empfehlen wir Bodenhülsen. Diese sind nicht automatisch enthalten und müssen gesondert beantragt werden.

In unserem Merkblatt Bodenhülsen für Schirme / Markisen sind alle wichtigen Informationen enthalten. 

Parklet - Bestuhlung auf einem ehm. Parkplatz / Stellplatz

Erforderliche Unterlagen:

  • Gewerbeanmeldung
  • Anzahl Parkstände
  • Foto von der Örtlichkeit / Gewünschter Bestuhlungsbereich
  • Lageplan mit Maßen
  • wenn notwenig, Informationen zum Podest (Unterkonstruktion, Material etc.)
  • Informationen zur Absicherung per Pflanzkübel (min. 40cm B und 60-70cm hoch)
  • Informationen zum Mobiliar wie Tische, Stühle (Fotos und Maße oder Datenblätter)

Parklets werden im gegensatz zur Gehwegbestuhlung nur ganzjährig erlaubt, es sei denn, das Parklet wird in den kalten Monaten auf eigenen Kosten abgebaut. 

Antragsformular Parklet (beschreibbar)
Muster-Lageplan Parklet
Muster-Antrag komplett

 

Handel / Gewerbetreibende - Antrag auf Warenständer oder mobile Werbetafeln / Kundenstopper

Warenständer - für Postkarten, Bücher, Kleidung usw.

Erforderliche Unterlagen:

  • Gewerbeanmeldung
  • Foto von der Örtlichkeit / Gewünschte Stellfläche
  • Länge der Geschäftsfront (pro 10 m Geschäftsfront ist max. eine Stellfläche möglich)
  • Bilder / Informationen inklusive Maße von den Warenständern
  • Lageplan / Skizze mit Maßen, insbesondere wegen der Restgehwegbreite

Antragsformular Warenständer

Werbetafel / Kundenstopper 

In den Planken, der Breiten Straße, Kunststraße sowie Fressgasse ist das aufstellen von Werbetafeln nicht erlaubt. Für alle anderen Betriebe in Erdgeschosslage, kann ein Antrag gestellt werden.

Erforderliche Unterlagen:

  • Gewerbeanmeldung
  • Foto von der Örtlichkeit / Gewünschter Bestuhlungsbereich
  • Bilder / Informationen inklusive Maße von der Werbetafel
  • Lageplan / Skizze mit Maßen, insbesondere wegen der Restgehwegbreite

Antragsformular Werbetafel

 

Veranstalter*in - je nach Veranstaltungsart

Straßenfest / Straßenumzug / Klein Veranstaltungen - in den Stadtteilen bis 250 Teilnehmer*innen

Beantragung erfolgt formlos bei 31Antrage@mannheim.de 

Platzkonzerte und Straßenmusik

Wichtige Informationen zur Straßenmusik finden Sie hier.

Großveranstaltungen - über 250 Teilnehmer*innen

Wichtige Informationen bzw. den Antrag finden Sie hier.

Demonstration, Versammlungen und Infostände

31versammlungen@mannheim.de --> weitere Informationen zum Thema

 

Bauherr - gewerblich oder privat

Dauerhaften Sondernutzungen - Einbau in den öffentlichen Raum

Jeder dauerhafte Einbau in den Öffentlichen Raum muss per Gestattungsvertrag erlaubt werden.

  • Erdkabel, Rohleitungen und Kanäle
  • Tunnel und Unterbauungen
  • Baugrubenverbau
  • Überbauten und Vorbauten

Antragstellung erfolgt formlos mit den erforderlichen Planunterlagen:

  • Bauherr / Auftraggeber (Name, Anschrift, Kontaktdaten)
  • Ausführende Firma (Zugelassene Tiefbaufirmen Mannheim)
  • Plan mit Maßen und allen im Umfeld befindlichen festen Einbauten (Straßenlaternen, Mülleimer etc.)

Erlaubnisse für bauliche Sondernutzungen als Gebäudebestandteile (Überbauungen mit Erker, Balkonen etc.) im Rahmen von baugenehmigungs- bzw. anzeigepflichtigen privaten Bauvorhaben werden im Rahmen dieser bauordnungsrechtlichen Verfahren des Fachbereichs Baurecht, Bauverwaltung und Denkmalschutz erteilt, wenn diese genehmigungsfähig sind.

Feste Installationen von Gegenständen
Baustelleneinrichtungsflächen 

 

Wichtige Downloads