66. Gestaltungsbeirat am 04.05.2023

Die Sitzung des 66. Gestaltungsbeirats fand am Donnerstag, den 04.05.2023 im HAIFA 2 (EG), des Technischen Rathauses statt.

Protokoll zum 66. GBR
 

TAGESORDNUNG

Öffentliche Beratungen

13:00 Uhr    TOP 1 Felina Areal; Neckarstadt-Ost - WV GBR 61

Dem Beirat wird in einer dritten erweiterten Vorlage das stadtquartiersprägende Projekt des Felina Areals umfassend konzeptionell und im Detail fortgeschrieben präsentiert.
Der Beirat begrüßt auch dieses Mal den guten und offenen Dialog mit Bauherr und den beteiligten Architektenteams und ist gespannt auf die Erklärungen zu den Neuerungen. Diese sollten auch aufbauen auf den Empfehlungen der letzten Beiratssitzung und natürlich auch eigener neuer Erkenntnisse der Teams. Auf dieser Basis kommen aus den Reihen des Beirats folgende Empfehlungen für die neu gezeigten Planungsschritte:
Die hybride Quartiersweiterentwicklung wird nach wie vor als sehr positiv wahrgenommen, hier begrüßt der Beirat die ersten erweiterten Vorschläge eines begleitenden Landschaftsarchitekturbüros für die unterschiedlichen Höfe und auch die diversen Dachlandschaften. Trotz der notwendigen Unterbringung von nachzuweisenden Stellplätzen in einer elementierten Parkpalette gilt es, den Grad der notwendigen Versiegelung so gering wie möglich zu halten.

Die gezeigte Weiterbearbeitung der stadtraumprägenden Fassadenstrukturen mit ihrem industriellen Charme und einer ausgeprägten materiellen Wirkung, sollten nach wie vor Grundlage werden für alle Fassaden.

Die weiter überarbeiteten Grundrisstypologien für die angedachten Wohnungsgrößen sind nachvollziehbar und entsprechen dem geplanten hybriden Charakter des Areals.
Die nunmehr vorgelegte Weiterentwicklung der spannenden Dachgeschosserweiterungen und Aufstockungen beruhen auf Basis der Vorstellung auf einer leichten Fehlinterpretation des letzten Protokolltextes speziell zum Thema des Daches und seines künftigen Ausdrucks und seiner Rhythmisierung. Nach wie vor überzeugt den Beirat eine Dachaufstockung in einer nachhaltigen Holzmodulbauweise in Kombination mit einer die Dachschrägen der umgebenden Nachbarschaften aufnehmenden strukturellen Dachhaut. Diese sollte konstruktiv nicht zu überdimensioniert erscheinen (siehe Hinweise letztes Protokoll) und Träger von Grünbewuchs sein, der entlang der Attiken bestmöglich in die Gesamtkubatur zu integrieren ist. Weiterhin wäre es nach wie vor wünschenswert, wenn bei der Höhenlage der Aufstockungen rhythmisch Bezug auf die darunterliegenden Bestandshäuser genommen werden könnte. Dies gilt es nach wie vor ausgewogen und angemessen zu konzeptionieren und zu planen.

Das vorgelegte bauphysikalische Konzept zeigt eine intensive Auseinandersetzung mit den Qualitäten und Mängeln der diversen Bestandbauten. Hier wurden mehrere Herangehensweisen der Ertüchtigungen insbesondere der quartiersprägenden Fassaden gegenübergestellt und aus Sicht des Beirats leider die falschen Schlüsse gezogen, nämlich ein fast komplettes Einpacken aller Fassadenteile mit unterschiedlichsten ausgeformten WDVS Systemen, die zwar rechnerisch auf den ersten Blick für die energetische Bilanz der Anlage überzeugen mögen, aber in der Gesamtbilanzierung einer zukunftstauglichen Umgangsweise mit Bestandsgebäuden dieser Art, nicht mehr den aktuell diskutierten Zielen einer weitergehenden Nachhaltigkeit entsprechen. Hier empfiehlt der Beirat eine weitergehende Betrachtung aller Parameter des Areals. Ein Zusammenspiel der Potentiale von Bestand mit seinen ausgeprägten Fassaden und der aufzustockenden Neubauten auf dem Dach. Die Besonderheit des Quartiers spiegelt sich neben den innenräumlichen Qualitäten und der Lagegunst, insbesondere auch über die Revitalisierung der ausdrucksstarken Fassaden wider. Diese sollte man daher nicht mit WDVS überziehen und nachzeichnen.

Der Beirat bedankt sich für die erneut gute Präsentation und den offenen Dialog und bittet Bauherr und Architekten auch die neuen Anregungen und Empfehlungen anzunehmen und das besondere Projekt in einem der nächsten Beiratssitzungen, je nach Bearbeitungsfortschritt wiederum zur Diskussion zu stellen.

Ergebnis: Wiedervorlage

 

13:30 Uhr    TOP 2 Rapp Metallbau, Anbau; Taylor, Vogelstang

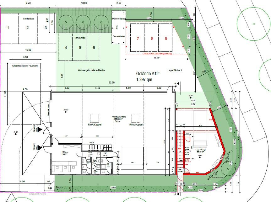
Das Grundstück befindet sich im Gewerbegebiet Taylor an der Delitzscher Straße. Das Gewerbegebiet besteht überwiegend aus orthogonalen, zweigeschossigen Hallen. Das bestehende Gebäude der Fa. Rapp Metallbau, das in 2018 erstellt wurde, soll nach Osten einen Anbau erhalten. Im Erdgeschoss sollen Flächen für ein - bisher außenliegendes- Lager vorgesehen, im 1.OG eine Betriebswohnung errichtet werden. Der Anbau wird bis an die gebogene Grundstückgrenze geführt, nimmt jedoch im rückwärtigen Bereich nicht die Flucht des Gebäudes auf und bleibt auch unter der Höhe der Halle. Im rückwärtigen Bereich sollen zudem drei bestehende Stellplätze mit einem Carport überdacht werden.

Der Beirat regt an, den Anbau als eine Erweiterung der Halle, der dessen Kubatur und Höhe aufnimmt, zu verstehen und auf die kompliziert und aufwändig wirkende, mehrfach abgeknickte Gebäudeecke zu verzichten. Dafür sollte alternativ die gesamte Tiefe des Bestandsgebäudes in Anspruch genommen werden. Auch sollte die Höhe des Anbaus die Höhe der bestehenden Halle weiterführen. Mit dem so entstehenden klaren, rechteckigen Anbau kann sicherlich auch ein besser nutzbarer Grundriss entstehen. Weiter könnte die Treppe über eine 90°-gedrehte zweiläufige Anordnung mehr nutzbare Fläche im Anbau generieren. Im Hinblick auf die Wohnqualität sollten auch Größe und Lage der Fensteröffnungen nochmals überprüft werden. Bei der Fassadengestaltung sollte sich der recht kleine Anbau nicht mittels einer weißen Putzfassade gegenüber dem dunklen Bestand hervorheben. Es wäre wünschenswert, wenn sich die beiden Bauteile des Metallbaubetriebs farblich ergänzen, lediglich bei der Textur der ebenfalls metallisch hinterlüfteten Fassade, könnte eine neue Struktur gewählt werden, z.B. eine enger gehaltene vertikal strukturierte Welle oder ähnliches. Der Carport im rückwärtigen Bereich sollte entsprechend baulich minimiert werden und sich gestalterisch möglichst unauffällig einfügen.

Der Beirat bittet um einen Austausch mit der Bauordnung zu den notwendigen baurechtlichen Anforderungen hinsichtlich der zuvor aufgeführten Empfehlungen sowie eine Wiedervorlage.

Ergebnis: Wiedervorlage

 

14:00 Uhr    TOP 3 Go 7 AG, Firmenzentrale; Taylor, Vogelstang

Der Entwurf der Firmenzentrale für GO 7 AG befindet sich in direkter Nachbarschaft zum Grünzug Taylorpark und zum Palazzo Gelände.

Baukörper
Der vorgestellte heterogene Baukörper besteht aus einzelnen Baukörpern, deren Differenzierung sich durch verschiedene Nutzungen ergeben hat. Er weist Vor- und Rücksprünge sowohl in der Horizontalen als auch in der Vertikalen auf. Der Baukörper bedarf der weiteren Durcharbeitung und Weiterentwicklung zugunsten eines klar definierten
einheitlichen Gebäudevolumens. Insbesondere der aus der Gebäudegesamtform herausgestellte 1-geschossige Baukörperteil für den Caterer sollte dahingehend untersucht werden, ob dieser Bauteil ggfs. durch ein Drehen um 90° in die 3-geschossige Gesamtform integriert werden kann. Dies wird sich auch bei der Freiflächengestaltung und Aufenthaltsqualität in Verbindung zum Taylorpark positiv auswirken. Das Staffelgeschoss ist in seinem baulichen Ausdruck eindeutiger in die Gesamtform des Baukörpers zu integrieren, um das Erscheinungsbild einer Firmenzentrale mit einer klar definierten Adressbildung zur Straßenseite auszubilden.

Der GBR empfiehlt bei der Überarbeitung strukturell einen klarer definierten Baukörper ohne bauplastische Verschneidungen und ohne unnötige Vor- und Rücksprünge zu entwickeln.

Farbgebung und Fassadenmaterial
Auf eine 2-farbige Farbgestaltung mit starken Kontrasten und verschiedenen Materialien sollte verzichtet werden, weiße Putzflächen einerseits und anthrazitfarbenen Metallverkleidungen andererseits sind besser zu vereinheitlichen. Der GBR empfiehlt eine einheitlich monochrome Farbgebung und eine dazu passende Materialwahl bei der Fassadengestaltung. Dies muss keine WDVS Fassade sein, sondern kann durchaus auch eine strukturell gut gemachte hinterlüftete Fassade sein.

Freianlagen
Für die Freianlagen ist ein qualifiziert profunder Freiflächenplan zu erarbeiten. Hier sind die Aspekte der Nachhaltigkeit und eines Flächenmanagements mit geringem Versiegelungsanteil zu bearbeiten, um auch eine bessere Versickerung / Verdunstung auf dem eigenen Grundstück zu gewährleisten. Besonderes Augenmerk sollte auf die naheliegende Verbindung zum benachbarten Taylorpark gelegt werden. Die an dieser Stelle bisher angeordneten Stellplätze an der Grenze zum Taylorpark sind zu Gunsten einer qualifizierten Grünflächengestaltung mit Aufenthaltsqualität an anderer Stelle nachzuweisen. Die Freiflächen zum Taylorpark sind besonders für den Aufenthalt von Mitarbeitern geeignet und in die Freiflächengestaltung mit baumbestandenen Grünflächen mit Aufenthaltsqualität einzubeziehen.

Die Baumreihen entlang des Baukörpers sind derzeit noch zu dicht am Baukörper positioniert und sind vom Baukörper deutlich abzurücken. Die Stellplatzanlagen sind hinsichtlich ihrer Anzahl auf das notwenige Maß zu reduzieren und gem. den Vorgaben der Stadt Mannheim mit PV-Anlagen zu überdecken.

Der Beirat bedankt sich für die Präsentation und den offenen konstruktiven Austausch und bittet Bauherr und Architekt die beschriebenen Anregungen aufzunehmen und freut sich auf die Wiedervorlage.

Ergebnis: Wiedervorlage

 

14:30 Uhr    TOP 4 Aventos Group, Gewerbepark Steinzeugstraße; Friedrichsfeld

Beim vorgestellten Projekt handelt es sich um die Konzeption eines Gewerbeparks mit Integration bildprägender Bestandsgebäude auf dem Kyocera Areal, Steinzeugstraße.

Der Gestaltungsbeirat begrüßt prinzipiell den Ansatz, bildprägende Gebäude zu erhalten und einen modernen Gewerbepark damit zu konzipieren. In der Anordnung der neu errichteten Gebäude jedoch lässt sich feststellen, dass eine Überfrachtung durch die zusätzliche
Baumasse entsteht. Damit einher geht, dass die Bestandsgebäude in ihrer Wahrnehmung extrem eingeschränkt werden.

Durch die Platzierung von großen Hallen-Typologien in der Mitte des Areals werden vielfältige Nachteile erzeugt. Der Gebäudekomplex im Westen rund um die Modellbauhalle und den Schornstein wird räumlich stark abgetrennt von der Zufahrt und kommt in eine versteckte Position. Dadurch ist das Gesamterlebnis des Areals stark eingeschränkt und es entsteht eine unnötig abgetrennte Hinterhofsituation hinter den im Vergleich extrem großen ausdruckslosen Hallen in der Mitte. Der Charme und die Gesamtadresse, vom Bauherren richtigerweise als besondere Adresse und USP dargestellt, werden dadurch extrem abgewertet.

Eine zusätzliche Anordnung der Bento Boxen verengt die räumliche Situation um die ehemalige Hauptverwaltung und sollte in Lage und Größe abweichend vom gezeigten Konzept angeordnet werden. Die aktuell damit konzipierte Handwerkergasse entlang einer beinahe komplett geschlossenen Hallenwand wird als äußerst nachteilig empfunden. Gegenüber dem Haupteingang des ehemaligen Verwaltungsgebäudes ist die LKW Zufahrt der neu angeordneten Lagerhallen ebenfalls extrem unglücklich angeordnet.
Insgesamt erscheint das Gebiet überfrachtet und es wird eine Neuanordnung und Größenrevision des zusätzlichen Raumprogrammes angeregt, mit der Vorgabe, Bestandsgebäude besser in Szene zu setzen, um die Idee der Gesamtadresse aufrechtzuerhalten. Die momentan extrem unübersichtliche Anordnung der Fahrgassen unterstreicht die Unklarheit der Wegeführung und Anordnung der Baumassen und sollte ebenfalls kritisch geprüft werden. Ein zum Abriss vorgesehenes Bestandsgebäude sollte nochmals auf Tauglichkeit überprüft werden.

In der Konzeption des Außenraums wurde in der gezeigten Visualisierung deutlich, dass der Esprit eines historisch geprägten Gewerbeareals völlig verloren geht. Deswegen sollte in der weiteren Bearbeitung geprüft werden, wie der landschaftsplanerische Ansatz der Behandlung der Oberflächen auf dem Gebiet aussieht, welcher sicher nicht durch die Anordnung neuer Fahrgassen oder klassischer Stadtplatzsituationen dominiert werden sollte.

Die Möglichkeit einer Anbindung an das Fahrradnetz im südöstlichen Bereich kann in der weiteren Konzeption berücksichtigt bleiben, ist jedoch aufgrund der Topographie schwierig umzusetzen und sollte in eine übergeordnete Konzeption der Verkehrswege eingebunden werden im Dialog mit den entsprechenden Fachbehörden der Stadt Mannheim. Die Stellplatzanzahl sowie Art der Anordnung wird hinterfragt und bedarf einer weiteren Verbesserung, auch im Hinblick der gesetzlichen Vorgaben der Stadt.

Der Beirat bittet um Wiedervorlage

Ergebnis: Wiedervorlage