16. Gestaltungsbeiratssitzung

Die Sitzung des 16. Gestaltungsbeirats fand am
Donnerstag, den 12. September 2013 im Friedrich-Walther-Saal im Erdgeschoss des Collini-Centers, Collini-Str. 1 statt.

Folgende Hochbauprojekte wurden öffentlich beraten:

13.00 Uhr

Neubau Mehrfamilienhaus Traitteurstraße 49 - Schwetzingerstadt

Bauherr: Evangelische Kirche, Mannheim

Architekt: SSV Architekten, Heidelberg

13.30 Uhr

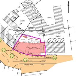
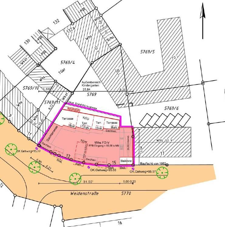
Neubau Mehrfamilienhaus Weidenstr. 13-15 - Schwetzingerstadt

Bauherr: Evangelische Kirche, Mannheim

Architekt: SSV Architekten, Heidelberg

14.00 Uhr

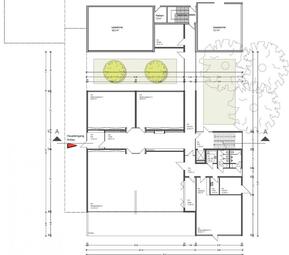
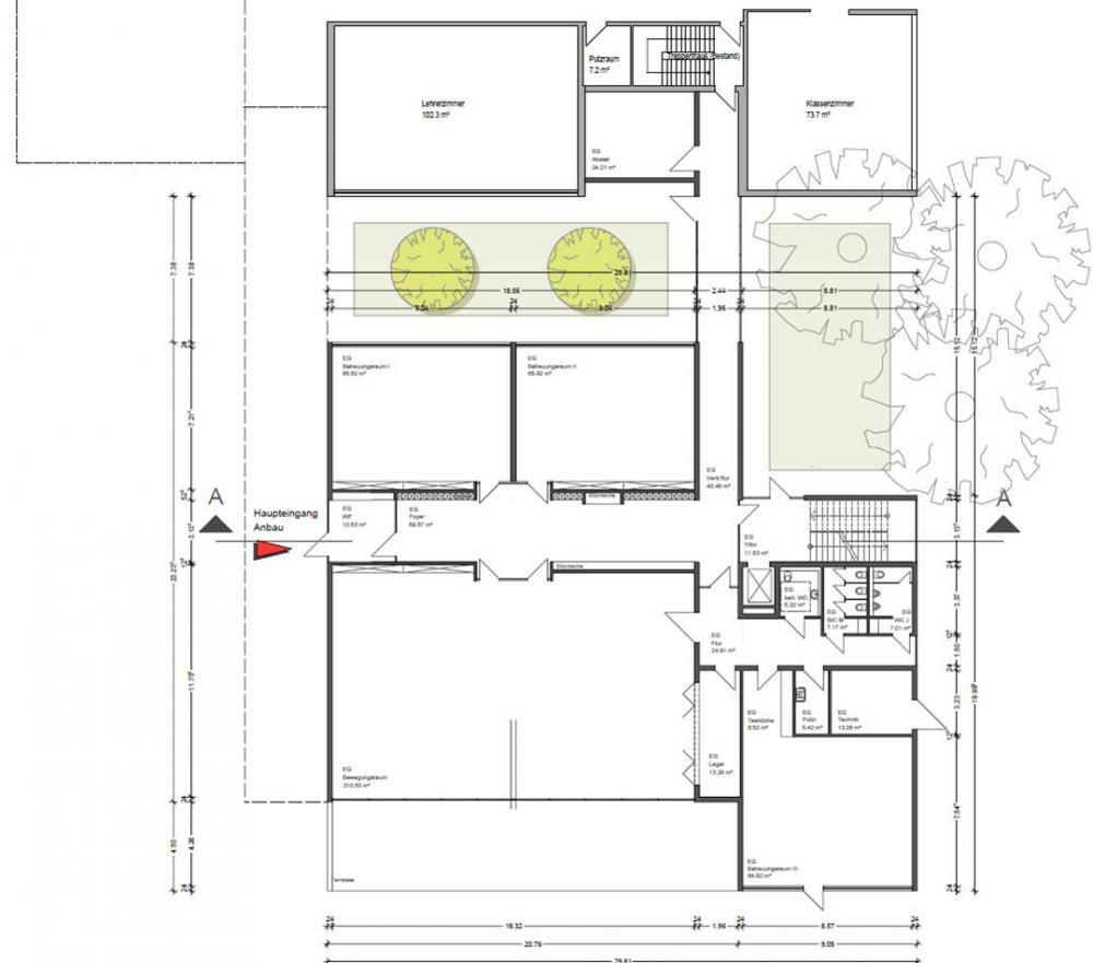
Wiedervorlage Erweiterung Brüder-Grimm-Schule - Feudenheim

Bauherr: Stadt Mannheim, Fachbereich Bildung

Architekt: Seidel Architekten, Mannheim

Galerie