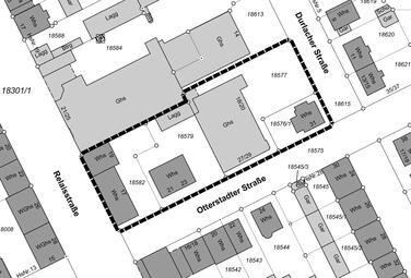
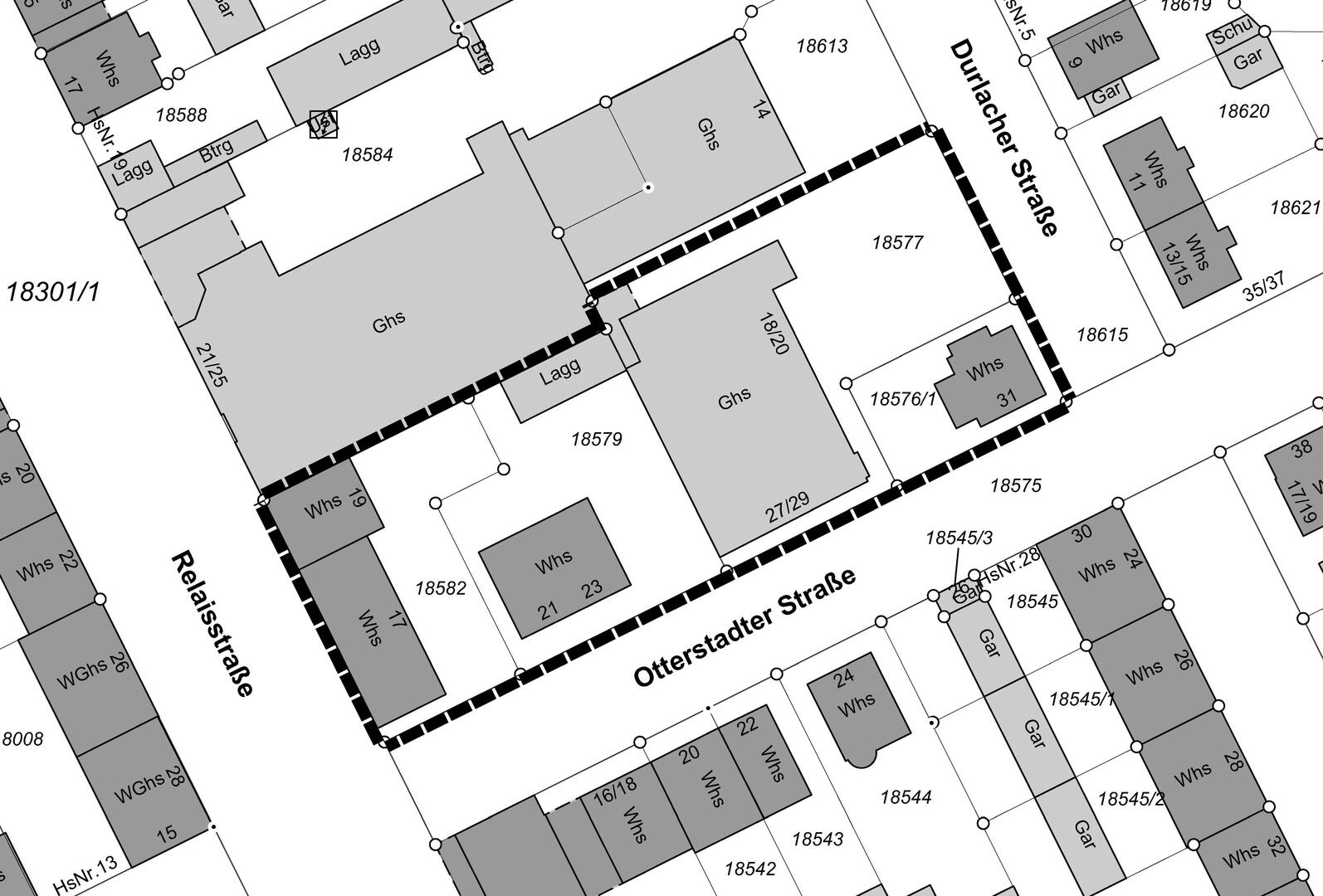
Bebauungsplan Nr. 85.26 "Ecke Otterstadter Straße / Relaisstraße"

 

 

Unterrichtung der Öffentlichkeit gem. § 3 Abs. 1 BauGB und der Behörden und sonstigen Träger öffentlicher Belange gem. § 4 Abs. 1 BauGB

vom 14.04.2025 bis einschließlich 30.04.2025

Hinweis:
Dokumente, die z.B. Kartenmaterial oder Tabellen enthalten, sind nur zum Teil barrierefrei.

Dokumente zum Bebauungsplanverfahren


Anregungen zur Planung adressieren Sie bitte:

E-Mail:
61.bauleitplanung@mannheim.de
Bei Rücksendung per E-Mail stellen Sie bitte unbedingt im Betreff die Bebauungsplannummer 85.26 voran.

Postanschrift:
Stadt Mannheim
Fachbereich Geoinformation und Stadtplanung
Abt. 61.2
Glücksteinalle 11, 68161 Mannheim


<= Zurück zur Seite aktuelle Bebauungspläne