Kinderhaus Freiberger Ring

Im Stadtteil Vogelstang ist das Kinderhaus Freiberger Ring aufgrund von Brand- und Schadstoffauflagen zu sanieren.
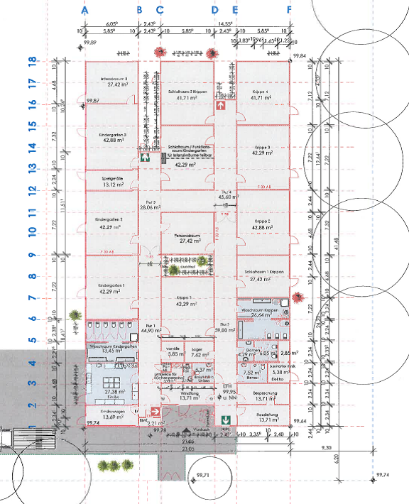
Durch die umfangreichen Sanierungsmaßnahmen müssen vier Krippen- und drei Kindergartengruppen in der Zeit der Bauphase, für voraussichtlich ein Jahr, ausgelagert werden. Der Ersatzbau ist eine Containeranlage, bestehend aus 70 Containern.

               Grundriss                                     Ansicht

 

Der Umfang der Maßnahme umfasst sowohl brandschutztechnische Ertüchtigungen im Erdgeschoss des Kinderhauses, als auch die Schadstoffsanierung der KMF-Wolle in den Decken. Außerdem erfolgt noch eine Fassadensanierung und eine umfassende Erneuerung der Hausinstallation. Die Zeitschiene für die Sanierung und die Auslagerung in die Containeranlage beträgt zwei Jahre. Derzeit läuft die Kampfmittelsondierung für den Ersatzbau.

Der Bund fördert die Maßnahme auf der Grundlage des Kommunalinvestitionsförderungsgesetzes (KInvFG) mit 3,24 Mio. Euro.